
Proyecto Arquitectonico
Desde la planeacion y diseño
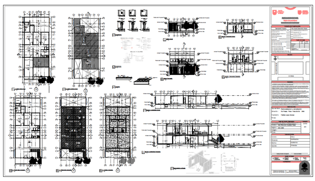
Creamos y desarrollamos proyectos arquitectonicos con planos ejecutivos y detalles constructivos adaptandonos a los requisitos y especificaciones de cada proyecot

SERVICIOS DE PROTECTO ARQUITECTONICO

PLANO ARQUITECTONICO
Diseño

PLANO ESTRUCTURAL
Diseño

PLANO DE INSTALACIONES
Diseño

PLANO ARQUITECTONICO
Diseño
Como desarrollamos tu proyecto?

Analisis de requerimientos
Estudio previo del terreno, necesidades y requisitos del cliente

Presentacion del concepto
Elaboracion de planos de distribucion, cortes y alzados. Renders en 3D para una mejor visualizacion, tanto de exteirores como de espacios concretos

Elaboracion de planos ejecutivos.
Despues del proyecto arquitectonico, si el cliente lo require, realizamos el proyecto ejecutivo, el cual incluye: plano estructural, planos de instalaciones, planos de albañilerias y acabados.

Entrega final
En base a las necesidades del cliente se le dan soluciones para la que mas se ajuste a sus espectativas
